LEASED
Part of 3/75 Apollo Drive

Rosedale, Auckland

For Lease by Negotiation

Listing: L38974994


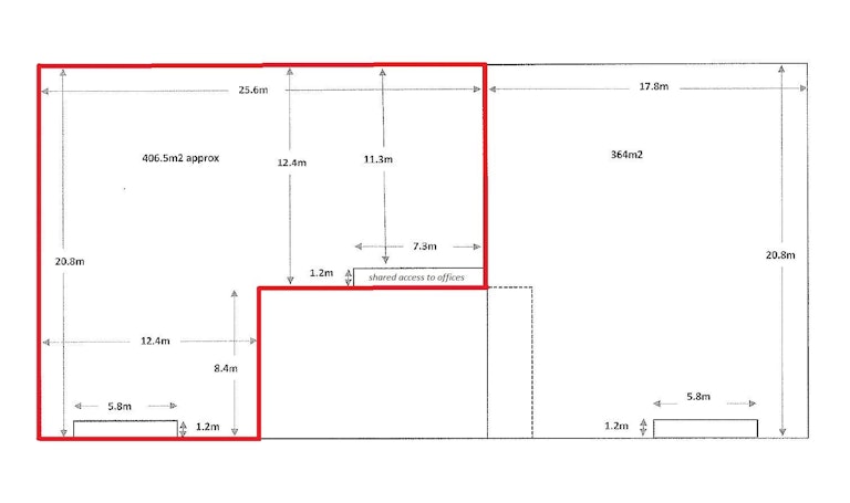
Pure Warehouse! 407m²
Sole Agency. FOR LEASE - Price by Negotiation A great value, versatile warehouse opportunity in Rosedale's sought after Interplex business precinct. This practical space will a broad range of storage, distribution and light manufacturing uses FEATURES - 407sqm of clear span, high stud warehouse (8.4m stud) - 47.4sqm of canopy - 2 exclusive car parks - Rental: $85,000 p.a. (Including Outgoings) + GST Available from 1 March 2026 (earlier by negotiation) Call the industrial specialists at NAI Harcourts today for further info or to arrange a viewing
Loading...

407(approx) Floor Area

2 Car Parks

Contact The Experts
Mike Fotu

Commercial Sales & Leasing Consultant

M

027 478 9308
Get In Touch
Loading...