126 Khyber Pass Road

Grafton, Auckland

For Lease by Negotiation

Listing: L38911740


High Profile New Medical/Office Offering
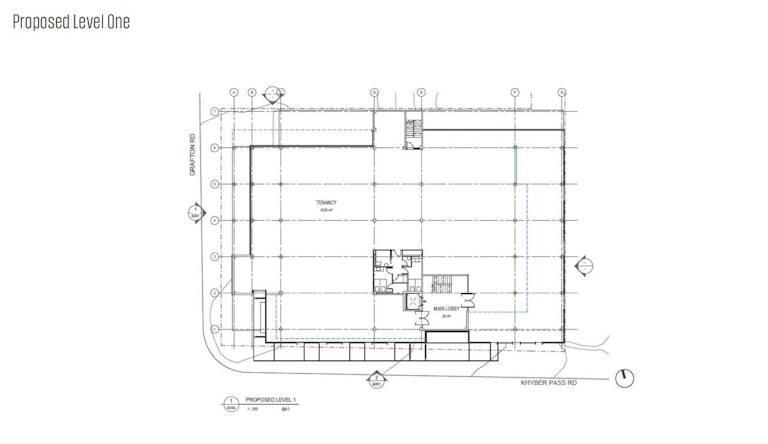
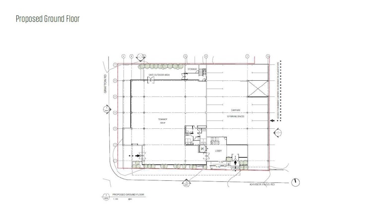
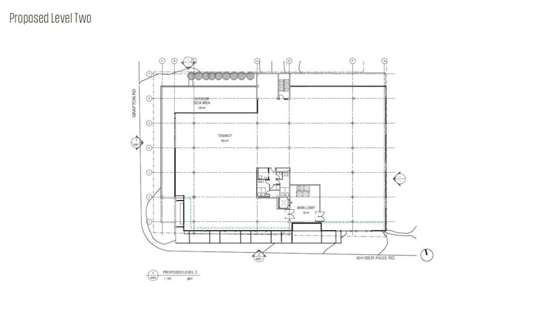
Secure a brand-new, high-profile medical, office, or showroom opportunity at 126 Khyber Pass Road, positioned on one of Auckland's busiest city-fringe intersections. Currently undergoing a full refurbishment with a new façade and sustainable design, this premium development is due for completion in Q4 2026. The three-level building offers approximately 2,700m² of flexible space, available as whole floors or split tenancies: Ground Floor: 611m2 Level 1: approx. 1,050-1,063m2 Level 2: approx. 994-1,050m2 + 138m2 deck With dual frontages to Khyber Pass Road and Grafton Road, the property enjoys exposure to over 130,000 vehicles per week, excellent signage opportunities, and 64 on-site car parks (48 secure, 16 visitor). Sustainability features include solar panels and rainwater harvesting to help reduce operating costs. Level 2 also benefits from a large balcony with views across the Waitemata Harbour and Sky Tower. Located minutes from Auckland City Hospital, the CBD, Maungawhau Station, major bus routes, and motorway links, this is an outstanding opportunity in one of Auckland's fastest-growing precincts. The landlord is open to early engagement to incorporate tenant fit-out requirements into the base build. Key Details: - Approx. 2,700m2 total (split options available) - 64 car parks - Dual street access & exceptional exposure - Completion Q4 2026 Get in touch today with the NAI Harcourts specialists to learn more or to explore how we can support improved workspace efficiency for your business. Channa Munasinghe 027 536 4020 Chase Erceg 021 049 0079
Loading...

611(approx) Floor Area

64 Car Parks

Contact The Experts
Channa Munasinghe

Senior Commercial Sales & Leasing Consultant

M

027 536 4020
Chase Erceg

Sales & Leasing Consultant

Get In Touch
Loading...