860 Great South Road

Penrose, Auckland

For Lease by Negotiation

Listing: L37584018


Stunning A-Grade Industrial - Penrose
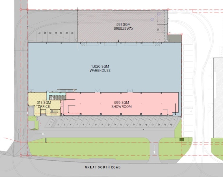
A rare opportunity to secure a premium building in a highly sought after Penrose location. 860 Great South Road is a modern, high-quality facility in the heart of Auckland's industrial precinct. Strategically positioned on a 4,893 sqm site and bordered by both Great South Road and the Southern Motorway (SH1), this property offers exceptional accessibility, profile, and functionality, all within a highly sought-after Business - Heavy Industry Zone. Property highlights include: - Warehouse: 1,626 sqm (high stud, currently fully racked - negotiable) - Fully covered drive-through breezeway: 591 sqm - Trade showroom: 599 sqm (current tenant may retain this space) - Two-level office and amenities: 313 sqm - Mezzanine storage: 618 sqm - Terrace: 24 sqm - 28 on-site carparks Constructed in 2023 to a high-quality finish, the building delivers excellent operational efficiency, layout, and presentation. Its location provides outstanding connectivity - only 400 m to SH1, 3.4 km to Sylvia Park Shopping Centre, 11.3 km to Auckland CBD, and 13.8 km to Auckland Airport. This premium Penrose property offers the ideal combination of visibility, access, and modern functionality - a rare find in today's market. Not what you're looking for? Get in touch and I'll run you through a number of similar available options. Contact the agent at NAI Harcourts for full information and to arrange a viewing.
Loading...

4,895(more or less Land Area)

3,772(approx) Floor Area

28 Car Parks

Contact The Experts
Mike Fotu

Commercial Sales & Leasing Consultant

M

027 478 9308
Get In Touch
Loading...